Burwood Real Estate

powered by Open2view.com
SOLD

Canterbury Area
4
1
N/A
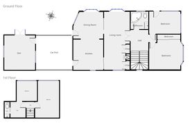
159sqm
673sqm
Canterbury Area
proudly marketed by
Tall Poppy Canterbury
Family Living in Restored '20s Gem
Looking for a spacious family home close to the CBD, in zone for Christchurch's most sought-after schools, and with gorgeous character features to boot? 17 Beckenham Street ticks all the boxes! Beautifully updated throughout for modern living - while retaining many original features and honouring the style of this 1920s gem - the property features 4 bedrooms and tons of space for the whole family. A generous additional office space (not connected to the main house) offers an exciting opportunity for small business owners, artists and those who like to work from home, while close proximity to excellent schools will delight families. Features you'll love include: Great location Large, sunny 673sqm section 159sqm footprint set over 2 levels 4 spacious bedrooms Open concept living, dining and kitchen Modern and spacious kitchen Updated family bathroom with tub downstairs Upstairs half-bathroom Modern neutrals decor, complementing natural wood features Bay windows throughout Skylights kitchen and dining Woodburner (plus wood shed) Manicured landscaping and established gardens Plenty of off-street parking Recently completed: New floor structure, floor panels and piles. New underfloor insulation New flooring on the ground floor and stairs New bathroom vanity Majority of interior repainted Majority new light switches, plugs and lighting All EQC repairs completed, including full sewer and storm pipe replacements and new concrete driveway Full roof moss and lichen treatment In zone for Thorrington Primary School, Beckenham School, Christchurch South Intermediate and Cashmere High School, the property's superb location is just a 5-minute walk to local cafes and restaurants. Lovingly restored period homes of this size - and in this location - are few and far between so don't delay in getting to the first open home. Please see our Tall Poppy website to download all available property files. THE FIRST AVAILABLE VIEWING TIME WILL BE THIS SUNDAY AT THE OPEN HOME: 11.30AM - 12.15PM
Question
Please leave this field blank:
Upload by Douglas Brownlie
Canterbury
This property was photographed by